Terreno edificile Buie (05633)
- Superficie : 1285 m2
- Particella : 1285 m2
- Distanza dal centro : 3000 m
- Distanza dal mare : 6000 m
205.600 €1.542.000 Kn
| Vista sul mare : | No | Piano : | 0 |
| Parcheggio : | No | Numero di piani : | 0 |
| Garage : | No | Numero di camere da letto : | 0 |
| Cantina : | No | Numero di bagni : | 0 |
| Possibilita d’ampliamento : | No | Anno di costruzione : | n/a |
GALLERIA
DESCRIZIONE DELL IMMOBILI
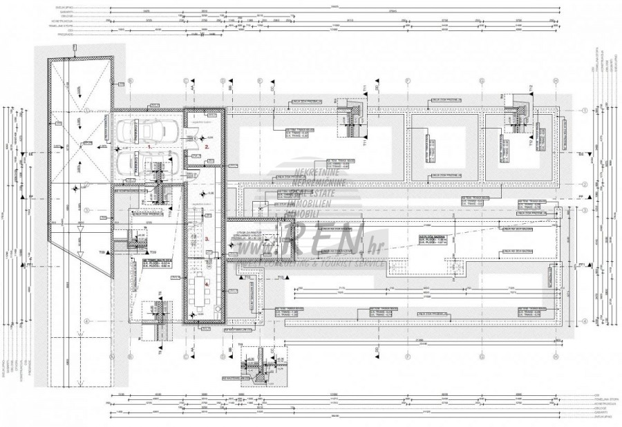
In una zona tranquilla nei pressi di Buie, vicino al confine con la Slovenia, è in vendita un terreno edificabile di 1.285 m² con progetto concettuale pronto per la presentazione della richiesta del permesso di costruire. Circondato da poche case e dalla natura incontaminata dell’Istria, il terreno offre grande privacy e condizioni ideali per la costruzione di una villa moderna. Il progetto prevede una villa elegante e contemporanea, sviluppata su un unico piano, progettata per offrire il massimo comfort e funzionalità. Dispone di quattro ampie camere da letto, un grande soggiorno open space, una zona fitness e una lussuosa piscina esterna di 70 m², pensata come fulcro della zona relax. Grazie alla posizione, alla dimensione del terreno e alla documentazione già predisposta, questa proprietà rappresenta un’ottima opportunità per realizzare una moderna residenza privata o un investimento immobiliare in una delle aree più ricercate dell’Istria nord-occidentale.
Tutti i dati e le immagini su questo sito web sono a scopo informativo, prima di qualsiasi conclusione o attività basata sulle informazioni contenute in questo sito, tutte le informazioni devono essere verificate nella nostra agenzia.
CONTATTATE L’AGENTE
REN Nekretnine
Adresse: C. Grissi 5, 52466 Cittanova, Croazia
E-mail: info@ren.hr
Web: www.ren.hr
Skype: ren.novigrad
Telefon: +385 52 726 664
Mobile: +385 99 24 99 444; +385 99 24 99 445








