Građevinsko zemljište Buje (05428)
- Površina : 11855 m2
- Okućnica : 11855 m2
- Udaljenost od centra : 1000 m
- Udaljenost od mora : 10000 m
na upit
| Pogled na more : | Da | Kat : | 0 |
| Parkiralište : | Ne | Broj katova : | 0 |
| Garaža : | Ne | Broj spavaćih soba : | 0 |
| Podrum : | Ne | Broj kupatila soba : | 0 |
| Mogućnost nadogradnje : | Ne | Godina izgradnje : | n/a |
GALERIJA
OPIS NEKRETNINE
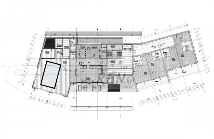
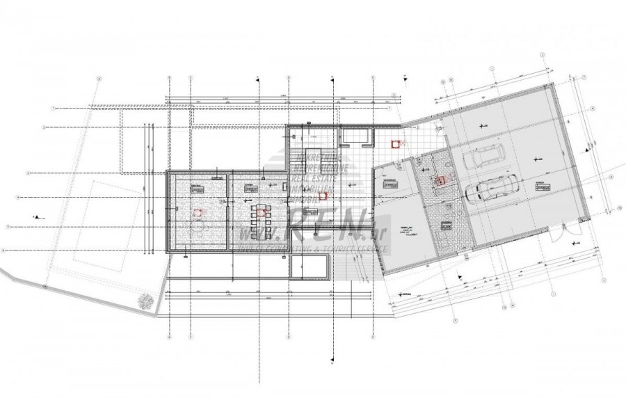
Nekretnine Istra, prodajem jedinstveno građevinsko zemljište, okolica Buja Građevinsko zemljište sa luksuznim projektom i ishodovanom građevinskom dozvolom ima ukupno 3700 m2 + dodatno 8155 m2 poljoprivredno (homogena cijelina). Sva potrebna infrastruktura na zemljištu. Prekrasan pogled na more i odlična lokacija. Nalazi se 4000 m od centra Buja, more je udaljeno 10000 m. Golf tereni su udaljeni 12000 m. Za dodatne informacije stojimo Vam na raspolaganju.
Svi podaci i slike na ovim internetskim stranicama prikazani su samo za informativne svrhe, prije bilo kakvog zaključka ili aktivnosti temeljenima na podacima sa ovih stranica, sve informacije je potrebno provjeriti u našoj agenciji.
PREPORUČUJEMO
KONTAKTIRAJTE AGENTA
REN Nekretnine
Adresse: C. Grissi 5, 52466 Cittanova, Croazia
E-mail: info@ren.hr
Web: www.ren.hr
Skype: ren.novigrad
Telefon: +385 52 726 664
Mobile: +385 99 24 99 444; +385 99 24 99 445












